価格 |
4,780万円 |
||
|---|---|---|---|
間取 |
4LDK |
築年月 |
2026/03(1年未満) |
建物面積 |
114.37m²(34.59坪) |
土地面積 |
189.06m²(57.19坪) |
所在地 |
千葉市稲毛区長沼町 |
||
交通 |
JR総武中央線稲毛駅まで バス21分 停歩7分 |
お電話でのお問い合わせ
物件番号:4522
お電話でお問い合わせの際は、物件番号をお伝えください。
043-239-7862
営業時間:10:00 AM - 7:00 PM
定休日:水曜日
ポイント
POINT
「長沼町新築住宅1号棟」
■当社なら、仲介手数料無料0円対象物件です。通常、約164万円が無料、大変お得です。ローン代行手数料などの余分な費用も一切ありません。仲介手数料無料の秘密はコチラから
■千葉都市モノレール線「スポーツセンター駅」徒歩17分、旧分譲地内につき、住環境良好です。南東側約4.4m公道・北東側約4.5m公道の角地に面した新築住宅、1棟現場です。駐車2台可、車庫入れもらくです。約20帖の広いLDK、パントリーがあります。玄関には土間収納があり便利、玄関上部は吹き抜けで明るさを演出します。
■共通設備・仕様:24時間換気システム、1坪タイプシステムバス、浴室換気乾燥機付き、システムキッチン、食洗機付き、シャンプードレッサー、シャワートイレ、TVモニター付きインターホン、ペアガラスサッシ、基礎パッキン工法、床下収納庫付き
■■■現地販売業者さんは売主ではございません。アンケート等の手続きをされますと当社での物件紹介(仲介手数料無料)が出来なくなる場合があります。内覧をご希望のお客様は当社にて立ち合い・ご案内をさせて頂きますのでお手数ですがTEL043-239-7862までお電話下さい。急いで現地へ向かいますので御連絡お待ちしております。
■当社なら、仲介手数料無料0円対象物件です。通常、約164万円が無料、大変お得です。ローン代行手数料などの余分な費用も一切ありません。仲介手数料無料の秘密はコチラから
■千葉都市モノレール線「スポーツセンター駅」徒歩17分、旧分譲地内につき、住環境良好です。南東側約4.4m公道・北東側約4.5m公道の角地に面した新築住宅、1棟現場です。駐車2台可、車庫入れもらくです。約20帖の広いLDK、パントリーがあります。玄関には土間収納があり便利、玄関上部は吹き抜けで明るさを演出します。
■共通設備・仕様:24時間換気システム、1坪タイプシステムバス、浴室換気乾燥機付き、システムキッチン、食洗機付き、シャンプードレッサー、シャワートイレ、TVモニター付きインターホン、ペアガラスサッシ、基礎パッキン工法、床下収納庫付き
■■■現地販売業者さんは売主ではございません。アンケート等の手続きをされますと当社での物件紹介(仲介手数料無料)が出来なくなる場合があります。内覧をご希望のお客様は当社にて立ち合い・ご案内をさせて頂きますのでお手数ですがTEL043-239-7862までお電話下さい。急いで現地へ向かいますので御連絡お待ちしております。
物件詳細DETAIL
建物構造 |
木造 |
間取詳細 |
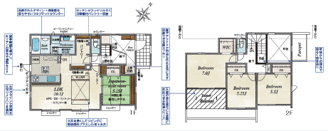
(1F)LDK20.5、(1F)和5.25、(2F)洋7、(2F)洋5.5、(2F)洋5.25 |
|---|---|---|---|
建ぺい率 |
60% |
容積率 |
200% |
地目 |
宅地 |
用途地域 |
第一種中高層住居専用地域 |
取引態様 |
一般媒介 |
私道面積 |
- |
引渡時期 |
2026/04 上旬 |
土地権利 |
所有権 |
借地料 |
- |
借地期間 |
- |
セットバック |
建築確認番号 |
||
接道 |
南東 4.4m(幅員) 公道
北東 4.5m(幅員) 公道 |
諸費用 |
|
周辺環境 |
あやめ台団地 停歩7分 |
学区 |
あやめ台小学校 820m
草野中学校 1,900m |
特色/設備 |
【仲介手数料無料】長期優良住宅、新築戸建、住宅性能保証付き、バリアフリー、駐車場、フラット35S、公営水道、公共本下水、都市ガス、耐震等級3、角地、南道路、食洗機付き |
||
情報更新日 |
2026年03月15日 |
次回更新予定日 |
2026年03月16日 |
取引条件有効期限 |
2026年03月22日 |
※掲載されている物件データが現状と異なる場合は現状を優先します。
周辺地図MAP
株式会社ワイズホームCOMPANY
所在地 |
千葉県千葉市花見川区検見川町3-304-7 |
||
|---|---|---|---|
免許番号 |
千葉県知事免許(3)第16815号 |
||
会員 |
(公社)全日本不動産協会
(公社)不動産保証協会
(公社)首都圏不動産公正取引協議会
|
||
電話番号 |
043-239-7862 |
FAX番号 |
043-239-7863 |
営業時間 |
10:00 AM - 7:00 PM |
定休日 |
水曜日 |
