価格 |
5,490万円 |
||
|---|---|---|---|
間取 |
3SLDK |
築年月 |
2026/02(建築予定) |
建物面積 |
103.09m²(31.18坪) |
土地面積 |
114.88m²(34.75坪) |
所在地 |
千葉県習志野市香澄3丁目 |
||
交通 |
JR総武中央線幕張本郷駅まで 徒歩25分
JR京葉線新習志野駅まで 徒歩21分 |
お電話でのお問い合わせ
物件番号:4450
お電話でお問い合わせの際は、物件番号をお伝えください。
043-239-7862
営業時間:10:00 AM - 7:00 PM
定休日:水曜日
ポイント
POINT
「香澄3丁目新築住宅B号棟」
■当社なら、仲介手数料無料0円対象物件です。通常、約187万円が無料、大変お得です。ローン代行手数料などの余分な費用も一切ありません。仲介手数料無料の秘密はコチラから
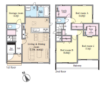
■B号棟は、1階に約16.6帖のLDK、納戸約4.5帖あり。2階に洋室3部屋とファミリークロークがある間取りです。南西側約6m公道につき、駐車もラクラク、駐車2台可。香澄小学校まで徒歩4分と近くて安心。
■共通設備・仕様:24時間換気システム、1坪タイプシステムバス、浴室換気乾燥機付き、システムキッチン、シャンプードレッサー、シャワートイレ、TVモニター付きインターホン、ペアガラスサッシ、基礎パッキン工法、床下収納庫付き
■■■現地販売業者さんは売主ではございません。アンケート等の手続きをされますと当社での物件紹介(仲介手数料無料)が出来なくなる場合があります。内覧をご希望のお客様は当社にて立ち合い・ご案内をさせて頂きますのでお手数ですがTEL043-239-7862までお電話下さい。急いで現地へ向かいますので御連絡お待ちしております。
■当社なら、仲介手数料無料0円対象物件です。通常、約187万円が無料、大変お得です。ローン代行手数料などの余分な費用も一切ありません。仲介手数料無料の秘密はコチラから
■B号棟は、1階に約16.6帖のLDK、納戸約4.5帖あり。2階に洋室3部屋とファミリークロークがある間取りです。南西側約6m公道につき、駐車もラクラク、駐車2台可。香澄小学校まで徒歩4分と近くて安心。
■共通設備・仕様:24時間換気システム、1坪タイプシステムバス、浴室換気乾燥機付き、システムキッチン、シャンプードレッサー、シャワートイレ、TVモニター付きインターホン、ペアガラスサッシ、基礎パッキン工法、床下収納庫付き
■■■現地販売業者さんは売主ではございません。アンケート等の手続きをされますと当社での物件紹介(仲介手数料無料)が出来なくなる場合があります。内覧をご希望のお客様は当社にて立ち合い・ご案内をさせて頂きますのでお手数ですがTEL043-239-7862までお電話下さい。急いで現地へ向かいますので御連絡お待ちしております。
物件詳細DETAIL
建物構造 |
木造 |
間取詳細 |
(1F)LDK16.62、(1F)S4.5、(2F)洋7.5、(2F)洋6.62、(2F)洋5.25 |
|---|---|---|---|
建ぺい率 |
50% |
容積率 |
100% |
地目 |
宅地 |
用途地域 |
第一種低層住居専用地域 |
取引態様 |
一般媒介 |
私道面積 |
- |
引渡時期 |
2026/02 下旬 |
土地権利 |
所有権 |
借地料 |
- |
借地期間 |
- |
セットバック |
建築確認番号 |
||
接道 |
南西 6m(幅員) 公道 |
諸費用 |
|
周辺環境 |
学区 |
香澄小学校 280m
第7中学校 930m |
|
特色/設備 |
【仲介手数料無料】長期優良住宅、新築住宅、性能保証付き、バリアフリー、駐車場、フラット35S、公営水道、公共本下水、都市ガス、設計住宅性能評価書取得済、建設住宅性能評価書取得予定、南道路 |
||
情報更新日 |
2026年01月26日 |
次回更新予定日 |
2026年01月27日 |
取引条件有効期限 |
2026年02月02日 |
※掲載されている物件データが現状と異なる場合は現状を優先します。
周辺地図MAP
株式会社ワイズホームCOMPANY
所在地 |
千葉県千葉市花見川区検見川町3-304-7 |
||
|---|---|---|---|
免許番号 |
千葉県知事免許(3)第16815号 |
||
会員 |
(公社)全日本不動産協会
(公社)不動産保証協会
(公社)首都圏不動産公正取引協議会
|
||
電話番号 |
043-239-7862 |
FAX番号 |
043-239-7863 |
営業時間 |
10:00 AM - 7:00 PM |
定休日 |
水曜日 |
