価格 |
2,380万円 |
||
|---|---|---|---|
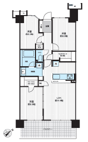
間取 |
3LDK |
築年月 |
2007/08(築18年) |
専有面積 |
70.81m²(21.42坪) |
総戸数 |
137戸 |
所在階 |
4階 |
建物階数 |
地上10階建 |
所在地 |
千葉市稲毛区園生町1312 |
||
交通 |
JR総武中央線稲毛駅まで バス16分 停歩1分 |
お電話でのお問い合わせ
物件番号:4434
お電話でお問い合わせの際は、物件番号をお伝えください。
043-239-7862
営業時間:10:00 AM - 7:00 PM
定休日:水曜日
ポイント
POINT
「ルネサンスアリーナ稲毛」
■当社なら、仲介手数料半額対象物件です。通常、約85万円が半額で約42万円、お得です。
■令和8年1月末内装リフォーム完了予定、システムキッチン新規交換、洗面化粧台新規交換、トイレ新規交換、浴室暖房乾燥機新規交換、全室クロス貼り替え、リビング・洋室・キッチン床CF貼り替え、ハウスクリーニング他
■敷地内駐車場は1台無料です。しかも、平面駐車場です。ペット飼育可能2匹まで(管理規約あり)
■園生保育園まで徒歩4分、草野小学校まで徒歩4分、草野中学校まで徒歩6分と近くて安心、子育て環境良好です。マミーマート稲毛長沼店まで徒歩6分、セブンイレブン千葉草野店まで徒歩1分とお買い物も便利です。
■当社なら、仲介手数料半額対象物件です。通常、約85万円が半額で約42万円、お得です。
■令和8年1月末内装リフォーム完了予定、システムキッチン新規交換、洗面化粧台新規交換、トイレ新規交換、浴室暖房乾燥機新規交換、全室クロス貼り替え、リビング・洋室・キッチン床CF貼り替え、ハウスクリーニング他
■敷地内駐車場は1台無料です。しかも、平面駐車場です。ペット飼育可能2匹まで(管理規約あり)
■園生保育園まで徒歩4分、草野小学校まで徒歩4分、草野中学校まで徒歩6分と近くて安心、子育て環境良好です。マミーマート稲毛長沼店まで徒歩6分、セブンイレブン千葉草野店まで徒歩1分とお買い物も便利です。
物件詳細DETAIL
建物構造 |
鉄筋コンクリート造 |
間取詳細 |
LDK14.4、洋6、洋6、洋5 |
|---|---|---|---|
土地権利 |
敷地権 |
用途地域 |
第一種中高層住居専用地域 |
取引態様 |
仲介 |
バルコニ面積 |
12.4m² |
駐車場 |
空有 |
駐車場月額 |
- |
管理組合 |
有 |
管理形態 |
全部委託 |
管理会社 |
株式会社長谷工コミュニティ |
管理人状況 |
日勤 |
管理費 |
13,450円 |
修繕積立費 |
14,870円 |
引渡時期 |
相談 |
諸費用 |
インターネット使用料 1,365円 |
周辺環境 |
草野小入口 停歩1分 |
学区 |
草野小学校 260m
草野中学校 460m |
特色/設備 |
【仲介手数料半額】内装リフォーム済、エレベータ、オートロック、ペット飼育可、宅配ボックス、駐車場、フラット35、都市ガス、二階以上 |
||
情報更新日 |
2026年01月20日 |
次回更新予定日 |
2026年01月21日 |
取引条件有効期限 |
2026年01月27日 |
※掲載されている物件データが現状と異なる場合は現状を優先します。
周辺地図MAP
株式会社ワイズホームCOMPANY
所在地 |
千葉県千葉市花見川区検見川町3-304-7 |
||
|---|---|---|---|
免許番号 |
千葉県知事免許(3)第16815号 |
||
会員 |
(公社)全日本不動産協会
(公社)不動産保証協会
(公社)首都圏不動産公正取引協議会
|
||
電話番号 |
043-239-7862 |
FAX番号 |
043-239-7863 |
営業時間 |
10:00 AM - 7:00 PM |
定休日 |
水曜日 |
