価格 |
1,488万円 |
||
|---|---|---|---|
間取 |
3LDK |
築年月 |
1975/09(築50年) |
専有面積 |
66.66m²(20.16坪) |
総戸数 |
132戸 |
所在階 |
7階 |
建物階数 |
地上11階建 |
所在地 |
千葉市稲毛区柏台 |
||
交通 |
JR総武中央線稲毛駅まで バス13分 停歩1分 |
お電話でのお問い合わせ
物件番号:4418
お電話でお問い合わせの際は、物件番号をお伝えください。
043-239-7862
営業時間:10:00 AM - 7:00 PM
定休日:水曜日
ポイント
POINT
「稲毛ファミールハイツ」
■ワイズホームなら、感謝キャンペーンにつき3月末まで仲介手数料半額対象物件です。通常、約55万円が半額で約27万円です。ローン代行手数料などの余分な費用も一切ありません。
■2019年5月内装リフォーム済。内容:システムキッチン・浴室・洗面化粧台・トイレ新規交換、床フローリングに貼替え、全室クロス貼替え、建具・下駄箱新規交換、給湯器・照明器具新規交換、ハウスクリーニング他◆2025年12月、新規内装リフォーム、全室クロス貼り替え、ガスコンロ・グリル1部交換、カップボード新規設置、トイレ交換、ハウスクリーニング他
■南東向き7階部分3LDK、前面棟が低層5階建てのため日当たり・眺望良好。専有面積約66㎡、約16帖の広いLDK。敷地内駐車場空きあり(月額7,000円)、エレベーター停止階につき便利。
■ワイズホームなら、感謝キャンペーンにつき3月末まで仲介手数料半額対象物件です。通常、約55万円が半額で約27万円です。ローン代行手数料などの余分な費用も一切ありません。
■2019年5月内装リフォーム済。内容:システムキッチン・浴室・洗面化粧台・トイレ新規交換、床フローリングに貼替え、全室クロス貼替え、建具・下駄箱新規交換、給湯器・照明器具新規交換、ハウスクリーニング他◆2025年12月、新規内装リフォーム、全室クロス貼り替え、ガスコンロ・グリル1部交換、カップボード新規設置、トイレ交換、ハウスクリーニング他
■南東向き7階部分3LDK、前面棟が低層5階建てのため日当たり・眺望良好。専有面積約66㎡、約16帖の広いLDK。敷地内駐車場空きあり(月額7,000円)、エレベーター停止階につき便利。
物件詳細DETAIL
建物構造 |
鉄筋コンクリート造 |
間取詳細 |
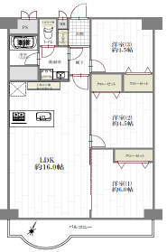
LDK16、洋6、洋4.5、洋4.5 |
|---|---|---|---|
土地権利 |
敷地権 |
用途地域 |
第一種中高層住居専用地域 |
取引態様 |
一般媒介 |
バルコニ面積 |
7.98m² |
駐車場 |
空有 |
駐車場月額 |
7,000円 |
管理組合 |
有 |
管理形態 |
全部委託 |
管理会社 |
三菱地所コミュニティ株式会社 |
管理人状況 |
日勤 |
管理費 |
5,000円 |
修繕積立費 |
13,190円 |
引渡時期 |
即時 |
諸費用 |
組合費 400円 |
周辺環境 |
ハイツ入口 停歩1分 |
学区 |
柏台小学校 700m
緑が丘中学校 1,400m |
特色/設備 |
【仲介手数料半額】エレベータ、駐車場、都市ガス、内装リノベーション済、二階以上、食洗機付き |
||
情報更新日 |
2026年03月21日 |
次回更新予定日 |
2026年03月22日 |
取引条件有効期限 |
2026年03月28日 |
※掲載されている物件データが現状と異なる場合は現状を優先します。
周辺地図MAP
株式会社ワイズホームCOMPANY
所在地 |
千葉県千葉市花見川区検見川町3-304-7 |
||
|---|---|---|---|
免許番号 |
千葉県知事免許(3)第16815号 |
||
会員 |
(公社)全日本不動産協会
(公社)不動産保証協会
(公社)首都圏不動産公正取引協議会
|
||
電話番号 |
043-239-7862 |
FAX番号 |
043-239-7863 |
営業時間 |
10:00 AM - 7:00 PM |
定休日 |
水曜日 |
