千葉市稲毛区稲毛東2丁目

価格 5,580万円

1/17
Point

「稲毛東2丁目新築住宅ミラクラスB号棟」

■当社なら、仲介手数料無料0円対象物件です。通常、約190万円が無料、大変お得です。ローン代行手数料などの余分な費用も一切ありません。仲介手数料無料の秘密はコチラから

■JR総武線稲毛駅徒歩8分、木造3階建て、南西側約5.1m公道で日当たり良好、2階のLDK約16.4帖で明るいリビングです。稲丘小学校まで徒歩6分。立地の良さが売りです。

■共通設備・仕様:24時間換気システム、1坪タイプシステムバス、浴室換気乾燥機付き、システムキッチン、シャンプードレッサー、シャワートイレ、TVモニター付きインターホン、ペアガラスサッシ、基礎パッキン工法、床下収納庫付き

■■■現地販売業者さんは売主ではございません。アンケート等の手続きをされますと当社での物件紹介(仲介手数料無料)が出来なくなる場合があります。内覧をご希望のお客様は当社にて立ち合い・ご案内をさせて頂きますのでお手数ですがTEL043-239-7862までお電話下さい。急いで現地へ向かいますので御連絡お待ちしております。

物件番号「4381」をお伝えください。

電話でお問合せ

物件情報

価格 5,580万円
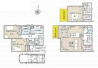
間取 2SLDK
間取詳細 (1F)洋5.3、(1F)洋5.1、(2F)LDK16.4、(3F)洋6.1
所在地
千葉市稲毛区稲毛東2丁目 地図
学区 稲丘小学校 470m/稲毛中学校 990m
交通 JR総武中央線 稲毛駅まで 徒歩8分
京成千葉線 京成稲毛まで 徒歩3分
種目 新築戸建
土地面積 90.46m²
建物面積 90.77m²
建ぺい率 60%
容積率 200%
建物構造 木造
地目 宅地
土地権利 所有権
借地料 -
用途地域 第一種住居地域
取引態様 一般媒介
築年月 2025/07
引渡時期 相談
諸費用
接道 南 4.9m(幅員) 公道
東 8m(幅員) 公道
セットバック
特色 【仲介手数料無料】駐車場、公営水道、公共本下水、都市ガス、新築戸建、住宅性能保証付き、バリアフリー、ZEH水準住宅、南道路、床暖房、食洗機付き
※掲載されている物件データが現状と異なる場合は現状を優先します。

更新情報

情報更新日 2025年12月15日
次回更新予定日 2025年12月16日
取引条件有効期限 2025年12月20日

物件番号「4381」をお伝えください。

電話でお問合せ
電話でお問合せ メールでお問合せ
簡易お問合せ

お名前


メールアドレス


問合せ内容


OK